Description du bien
ID de l'offre : 2000190
Ce bâtiment agroalimentaire est situé à Chanverrie à 58 km de La Roche sur Yon dans le département de la Vendée en Région Pays de la Loire.
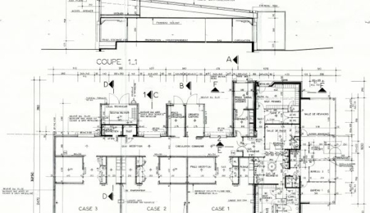
Ce bâtiment agroalimentaire d’une superficie de 1 400 m² est composé de :
• 3 ateliers de 200 m² chacun
• 3 bureaux d’une superficie de 59 m²
• Locaux sociaux de 141 m²
Ce bâtiment est disponible à la location
En image

Caractéristiques techniques
Bâtiment
Surface du bâtie : 1400 m2
Etat du batiment : Bon état
Accès
Se situe à :
- Proximité immédiate de la RD 160 Cholet - Les Herbiers
- 5 mn de l'échangeur A87
- Gare la Roche sur Yon (55 km)
- Gare Nantes (66 km)
- Aéroport de Nantes (75 km)
- 50 km de Bressuire