Description du bien
ID de l'offre : 100322
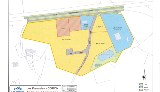
Le parc d’activités Anjou Actiparc des Fresnaies est situé à Coron dans le Maine-et-Loire. La zone industrielle dispose de 9.6 hectares disponibles à l’acquisition pour implanter votre entreprise. L’Anjou Actiparc des Fresnaies est entièrement viabilisé et équipé en très haut débit.
En image
Caractéristiques techniques
Terrain
Superficie totale de la zone d'activités : 96000.0 m²
Parcelle maxi disponible : 67000 m2
Parcelle mini disponible : 5000 m2
Vocation industrielle : oui
Vocation logistique : oui
Vocation services : oui
Accès
Cette zone industrielle de 13.8hectares est située entre Cholet et Saumur. L’autoroute A87 entre Angers et Bordeaux et l’agglomération de Cholet sont à 20 minutes.
Hauteur maximale des batiments : 12.0 m
Haut débit / Numérique : Fibre optique
Assainissement : Non collectif
Terrain divisible