Terrain à vendre à ST CALAIS - 2000 à 12000 m2

Terrain | à vendre | 36600 M2 | ST CALAIS (72120)
1

Description du bien

ID de l'offre : 100249

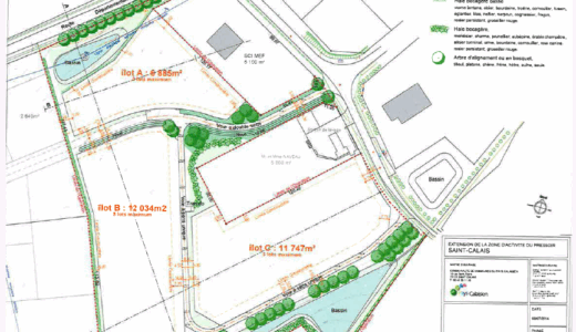
Elle est composée de 3 ilots divisibles chacun de 2 à 5 lots: 1 ilot de 11747m² (divisible en 3 lots maxi), 1 ilot de 12034m² (divisible en 5 lots maxi), 1 ilot de 6885 m² (divisible en 3 lots maxi).

Type de bien : Terrain
Périmètre : ZRR
2

En image

×
3

Caractéristiques techniques

Terrain

Superficie totale de la zone d'activités : 36600.0 m²

Parcelle maxi disponible : 12000 m2

Parcelle mini disponible : 2000 m2

Vocation industrielle : oui

Vocation services : oui

Accès

  • sur la D357 (axe Orléans-Rennes)
  • à proximité de deux gares TGV (Vendôme-Villiers 32 km et Le Mans 45 km)
  • à 33 km de l'A11 (axe Paris/Nantes) – sortie La Ferté Bernard

Hauteur maximale des batiments : 8.0 m

Haut débit / Numérique : DSL

Terrain divisible

Alimentation en gaz